Построение на диаграмме основных процессов обработки воздуха в теплый и холодный периоды года

Решение конкретной задачи кондиционирования воздуха заключается в построении на l-d. диаграмме процессов, протекающих в кондиционируемом помещении и в кондиционере На этом основании полученных данных далее осуществляется компоновка кондиционера и расчет (подбор) его основного оборудования

На рисунке 2 32 представлена схема возможной комплектации кондиционера, в частном случае некоторые элементы этой схемы могут отсутствовать Предусматривается установка утилизатора теплоты У, теплообменников I-ой и Н-ой ступени, оросительной камеры, штриховыми линиями показаны возможные варианты рециркуляции воздуха (PI, Р2, РЗ) Устройства для очистки воздуха от механических примесей и шумоглушители условно не показаны Теплообменники условно могут выполнять функции охлаждения и нагрева воздуха Схема водоснабжения показана для случая редко применяемого политропического режима взаимодействия обрабатываемого воздуха с водой Охлаждение воды осуществляется в испарителе холодильной машины, при применении реверсивных холодильных машин этот теплообменник может выполнять и функции нагрева воды Применена традиционная открытая схема водоснабжения с хранением воды в холод, ном и теплом (X, 7) отделении бака


Построим несколько вариантов процесса обработки воздуха в кондиционере Исходные данные для проектирования представлены в нижеприводимых таблицах 2 56 и 2 57 Принято, что объект находится в г Одесса Система кондиционирования воздуха должна соответствовать требованиям, предъявляемым к СКВ второго класса Расчетные параметры наружного и внутреннего воздуха для проектирования СКВ (с учетом требований [1, 2] по корректировке параметров Б для теплого периода года) представлены в таблице 2 56

Рассмотрим и оценим несколько вариантов организации процесса обработки воздуха и на основании полученных результатов подберем необходимое оборудование

Работа по выбору процессов обработки воздуха и назначения необходимого оборудования, как правило, начинается с производства расчетов и анализа полученных результатов для для теплого периода года

Наносим на 1-d диаграмму (рис 2 33) зону оптимальных параметров внутреннего воздуха Она в данном случае изолиниями Гв=20 и 22°С, фв = 40 и 60% Работа в зоне допустимых параметров внутреннего воздуха обосновывается в соответствии с требованиями ГОСТ 12 1 005


Построение процесса обработки воздуха начинается с определения тепловлажностного отношения при ассимиляции теплоты и влаги приточным воздухом в обслуживаемом помещении Е, В технической литературе эта величина называется еще угловым коэффициентом процесса изменения состояния воздуха в помещении или сокращенно лучом процесса


На транспортире численных значений угловых коэффициентов проводим линию F, = 8288 и путем параллельного переноса накладываем ее на угловые точки выделенной зоны оптимальных параметров Далее по этим шиям перемещаемся вниз на величину Дt0 = tg - t- = 5° и получаем угловые точки зоны возможных значений параметров приточного воздуха Зона возможных значений приточного воздуха ограничивается изолиниями г«= 15 и 17°С = const, фя = 46 и 75% = const

При разработке процессов кондиционирования из выделенной зоны оптимальных параметров внутреннего воздуха назначается расчетная точка внутреннего воздуха В С точки зрения экономической целесообразности в теплый период года лучше всего поддерживать в помещении верхнее зна» чение оптимальной температуры, т.е. te=22°С. В этом случае затраты, связанные с потреблением холода будут минимальными. В качестве расчетного значения влажности назначаем ее среднее значение из выделенного диапазона, т.е. фв=(40 + 60)/2=50%. Точка с параметрами te=22°С и Ф=50% наносится на l-d диаграмму (точка В). Одновременно нанесем на l-d дна- грамму и параметры наружного воздуха (точка Н).

Перемещаясь из точки В по линии ел - 8277 на величину Дt0 = te - f=5° получаем точку 77, характеризующую состояние расчетных параметров приточного воздуха. Приточный воздух (воздух на выходе из воздухораспределителя) должен иметь температуру tH = 17°С и относительную влажность ф- = 60%.

Определим параметры уходящего воздуха по формуле 2.112.


Уходящий воздух проходит через вытяжной вентилятор и далее перемещается по теплоизолированным воздуховодам. Принимаем, что подогрев воздуха в вентиляторе равен =1°С, а путевые изменения его температуры в воздуховодах незначительны. Таким образом, на выброс в атмосферу или на рециркуляцию уходящий воздух приходит с параметрами Р. Точка Р находится на один градус выше точки У по линии dY=const.

Определим по полным теплоизбыткам для данного расчетного периода количество воздуха (м3/час), необходимое для ассимиляции тепло- и влаго- избытков внутри обслуживаемого помещения


Если избыточная теплота задана в Вт, то переход к размерности кДж/час осуществляется исходя из того, что 1 Вт = 3600 Дж/час или 1 Вт = 3,6 кДж/час.

Подача наружного воздуха при санитарной норме 20 м3/час [1, 2] на каждого присутствующего в зале (всего 500 человек) составляет Lc- = 20-500 = 10000 м3/час. Таким образом, допускается рециркуляция внутреннего воздуха в объеме 16270- 10000 = 6270 м3/час или « = 6270/16270 = .~0,385. В данном случае максимальный объем воздуха рециркуляции не должен превышать 38,5%.

При выделении в помещении газовых или иных вредностей расчет количества приточного воздуха следует проводить по каждой из них и расчетные расходы воздуха принимать в соответствии с указаниями [1,2], отраслевых нормативных документов и других литературных и нормативных источников. При превышении значений расхода приточного воздуха, полученных по результатам расчета разбавления других вредностей, над расходом, определенным по избыточной теплоте, следует принять большее значение искомой величины. Далее произвести корректировку принятого решения по распределению воздуха и уменьшить значение AtQ. При наличии в помещении местных отсосов расход приточного воздуха должен определяться и с учетом этого параметра и быть не меньше производительности местных отсосов.

Далее при перемещении против потока обрабатываемого воздуха необходимо определить изменение состояния воздуха в вентиляторе. Ввиду того, что на данной стадии невозможно определить параметры вентилятора, принимаем, что нагрев воздуха в нем составляет =1°С. В вентиляторе не происходит изменение влагосодержания воздуха. По этой причине точка, характеризующая состояние воздуха на входе в вентилятор, находится ниже точки Я на один градус по линии dn = di = const. Параметры воздуха на входе в вентилятор характеризует точка 1.

При дальнейшем перемещении по тракту кондиционера в этом же направлении необходимо найти изменения параметров воздуха в воздухоподогревателе второй ступени. В воздухоподогревателе осуществляется только подогрев его и по этой причине параметры изменяются тоже по линии dn=dl= const. Точка, характеризующая состояние воздуха на входе в воздухоподогреватель второй ступени или на выходе из оросительной камеры (точка 2), находится, таким образом, на линии dx =d2=const, проходящей через точки Пи 1. Ранее было определено, что относительная влажность воздуха на выходе из оросительной камеры составляет ф = 90-95%. Принимаем, что точка 2 лежит на пересечении изолиний ф = 90% и d= d2 = const.

В теплый период года в оросительных камерах реализуются подтропические процессы обработки воздуха. В данном случае воздух из состояния Н необходимо перевести в состояние 2. Исходя из принятой ранее модели о смешении обрабатываемого воздуха с насыщенным воздухом в тонком слое над поверхностью капель воды, точка 2 представляет смесь воздуха с параметрами Я и воздуха с влажностью ф= 100% и имеющего температуру разбрызгиваемой воды. Проводя линию через точки Я и 2 до пересечения с линией ф= 100% можно найти точку W, характеризующую требуемые Для реализации такого процесса параметры воды. Видно, что эта линия не пересекается с линией ф= 100%, следовательно, этот процесс нереализуем. Возможные параметры этого процесса приведены в колонке 1 таблицы 2.58.



Если положение точки 2 назначить на линии р = 95% и di=d2~const (точка 2-), то процесс становится реализуемым при контакте воздуха с водой, имеющей температуру %= + 8,0°С При назначении более высокого значения относительной влажности воздуха на выходе из оросительной камеры возрастает значение коэффициента эффективности Е, а значит и коэффициента орошения (см формулу 2 110)

Полученные в результате построения процесса кондиционирования воздуха факты уже показали, что при переходе от точки Н к точке П в кондиционере может быть много путей изменения состояния воздуха Представляют интерес такие варианты обработки воздуха, которые позволят при наименьших затратах на комплектацию кондиционера получить и минимальные затраты энергии на реализацию процессов Выбор оптимальных режимов кондиционирования воздуха можно осуществить на основании рекомендаций, разработанных под руководством проф А А Рымкевича, А Я Креслиня и др В данном случае наметим несколько путей обработки воздуха в кондиционере, оценим их энергетическую эффективность и затраты на покупку оборудования Это

- рассмотренная выше обработка (22°С и фв = 50%) без рециркуляции при влажности воздуха на выходе из оросительной камеры ф = 95%, т е по пуги «наружный воздух»-«оросительная камера»-«подогрев» (Н-ОК-П, рис 2 33а), а также

- «наружный воздух»-«рециркуляция»-«оросительная камера с влажностью воздуха на выходе ф = 90%»-«подогрев» (Н-Р-ОК-П, рис 2 33я),

- «наружный воздух»-«рециркуляция»-«оросительная камера с влажностью воздуха на выходе ф = 90%» (Н-Р-ОК, рис 2 33а),

- «наружный воздух»-«воздухоохладитель»-«подогрев» {Н-О-П, процесс на рис 2 33 не показан, характер процесса аналогичен показанному на рис 2 ЗЗв),

- «наружный воздух»-«рециркуляция»-«воздухоохладитель»-«подогрев» (Н-Р-О-П, процесс на рис 2 33 не показан, характер процесса аналогичен показанному на рис 2 ЗЗв),

варианты обработки воздуха при расчетных параметрах внутреннего воздуха te - 22°С иф- = 60%

- «наружный воздух»-«оросительная камера»-«подогрев» (Н-ОК-П, рис 2 336),

- «наружный воздух»-«рециркуляция»-«оросительная камера с влажностью воздуха на выходе ф = 90%»-«подогрев» (Н-Р-ОК-П, рис 2 336),

- «наружный воздух»-«рециркуляция»-«оросительная камера с влажностью воздуха на выходе ф = 90%» {Н-Р-ОК, рис 2 336),

- «наружный воздух»-«воздухоохладитель»-«подогрев» {Н-О-П, рис 2 ЗЗв),

- «наружный воздух»-«рециркуляция»-«воздухоохладитель»-«подогрев» {Н-Р-О-П, рис 2 ЗЗв)


Привлекательным является вариант применения обводного клапана на воздухоохладителе, который рассмотрен ниже при подборе блоков конди- пионера фирмы «Веза»

В качестве критериев оценки того или иного варианта обработки воздуха принимаем стоимость оборудования для выполнения конкретной технологической операции и затраты на энергетическое обеспечение работы кондиционера Отметим, что в общем балансе затрат на приобретение и эксплуатацию кондиционера в течение всего периода его работы, стоимость энергетических затрат составляет примерно 80% По этой причине главным критерием оценки того или иного варианта следует признать уровень энергопогребления на его реализацию

Построим процесс кондиционирования воздуха с применением первой рециркуляции Смешение воздуха с параметрами Р и Я позволяет при известном их объемном соотношении и объемной массе найти точку смеси По 1-d диаграмме видно, что воздух с параметрами Р и Н имеет близкую объемную массу (=1,18 кг/м3), поэтому соотношение смешиваемых масс равно 6270/10000 = 1/1,6 В этом случае точка См делит отрезок Р-Н на два отрезка P-См и См-Н с соотношением длин 1,6/1

Применение рециркуляции позволило в данном случае снизить энтальпию воздуха, поступающего в оросительную камеру, с 60 кДж/кг до 54,4 кДж/кг При применении рециркуляции (при условии щ=const) для обработки воздуха требуется также более высокая температура воды Изменяется в сторону уменьшения и коэффициент эффективности процесса тепловлажностной обработки воздуха в оросительной камере Все эти факты способствуют снижению энергопотребления кондиционером

Можно показать, что в данном случае малоэффективно применение утилизации холода Обмен теплотой в утилизаторе между воздухом с параметрами Р и Н при коэффициенте температурной эффективности 0,5 позволил бы охладить наружный воздух до температуры 26,6 - 0,5(26,6 - 24) = = 25,3 и снизить его энтальпию до 58,5 кДж/кг (процесс охлаждения осуществляется по линии dH=const) Рециркуляция позволила получить большее снижение энтальпии По этой причине в перечне оцениваемых процессов утилизация холода не рассматривается

Рассмотрим применение для охлаждения и осушки наружного воздуха воздухоохладшеля Простейший пример применения этого блока - это работа его в цикле прямоточного кондиционера Отметим высокую степень эффективности теплопередающих поверхностей современных воздухоохладителей, что подчеркивается рекомендациями производителей считать относительную влажность на выходе из воздухоохладителя равной 100% Наружный воздух охлаждается до температуры точки росы по линии Н-а и после начала конденсации по линии а-2 Процесс в калорифере второго подогрева изображается линией 2-1 При наличии рециркуляции в объеме 6270 м3/час процесс охлаждения и осушки смеси реализуется по линии. Представляет интерес процесс получения параметров точки 1 после воздухоохладителя В данном примере мы будем подбирать оборудование французской фирмы «С1АТ», которая не комплектует воздухоохладители обводным каналом с клапаном По этой причине получить параметры точки 1 после воздухоохладителя можно только с помощью применения второй рециркуляции (по схеме на рис 2 32 - Р4) Для оценки возможности реализации данного процесса проведем через точки 1 и Р линию до пересечения с ф = 100% (рис 2 33) Соотношение отрезков 2--7 и 1-Р позволяет найти необходимый для реализации данного процесса объем рециркуляции Соотношение этих отрезков в пределах точности графического определения координат их точек показывает, что для второй рециркуляции необходим объем воздуха примерно равный 38 39%, что практически соответствует установленному ранее максимальному объему рециркуляции в 6270 м3/час Таким образом, по этому варианту наружный воздух в объеме 10000 м3/час охлаждается в воздухоохладителе до параметров точки 2- и в процессе второй рециркуляции смешивается с воздухом с параметрами Р Параметры смеси в этом случае соответствуют параметрам точки 1 По этому варианту не требуется применение калорифера второго подогрева Параметры этого процесса представлены в таблице 2 58

Разработанные процессы обработки воздуха для летнего периода позволяют определить параметры основного оборудования кондиционера Расход теплоты на подогрев воздуха в калорифере второго подогрева может быть определен по расходу воздуха и по начальной t2 и конечной t температуре его, а также по конечному и начальному значению энтальпии


При переходе из состояния Н в состояние 2 в прямоточном кондиционере и при переходе из состояния См тоже в состояние 2 уменьшается теплосодержание обрабатываемых потоков Эта теплота переходит к разбрызгиваемой в камере воде Для поддержания требуемой температуры воды от нее требуется постоянный отвод этого же количества теплоты Величина этой теплоты является нагрузкой для холодильной машины, Qx Для прямоточного кондиционера


В любом случае оценить изменение саккумулированной тепловой энергии 1 кг воздуха можно по разности энтальпий в начальном и конечном его состоянии В дальнейшем для каждого конкретного случая формулы типа 2 116 2 118 приводиться не будут Расчеты потребности отвода или подвода тепловой энергии будет осуществляться по оговоренному здесь принципу

Коэффициент эффективности тепловлажностной обработки воздух для прямоточного кондиционера


Результаты расчетов сведены в таблицу 2 58

Анализ данных таблицы 2 58 показывает, что наименьшие энергетические затраты из реально реализуемых процессов имеет вариант обработки воздуха по схеме «наружный воздух»-«рециркуляция»-«охлаждение с осушкой в поверхностном воздухоохладителе»-«подогрев в калорифере второго подогрева» и «наружный воздух»—«охлаждение с осушкой в поверхностном воздухоохладителе»—«рециркуляция после воздухоохладителя» Выделенный вариант наиболее предпочтителен Здесь не учитывается эффект утилизации холода из уходящего воздуха ввиду малой разности температур tH - tP

В практике кондиционирования воздуха в настоящее время не применяются политропические процессы обработки воздуха в оросительных камерах Например, в варианте Н-Р-ОК требуется температура воды +3°С Этот вариант требует наименьших затрат холода (17,3 кДж/кг) и не требует расхода теплоты Однако, здесь не учтены потери при передаче холода от испарителя холодильной машины к охлаждаемой воде, возможность замерзания воды в испарителе, т к температура холодильного агента будет ниже 0°С и др Кроме того, следует отметить, что система водоснабжения кондиционера для реализации политропических процессов, структура и система автоматического управления ею будут иметь высокую стоимость и сложность Эти причины и приводят к тому, что политропические процессы обработки воздуха в оросительных камерах в теплый период года практически не применяются

Далее осуществим построение процессов обработки воздуха для холодного периода года.

При анализе режимов работы кондиционера в теплый период года было установлено, что санитарная норма подачи наружного воздуха составляет Lc- 10000 м3/час По этой причине в прямоточном режиме кондиционер может работать с производительностью не менее 10000 м3/час Рассмотрим прямоточный режим работы кондиционера в холодный период года Подача 10000 м3/час воздуха в помещение при выделении полной теплоты в количестве 71300 кДж/час требует наличия разности энтальпий между приточным и уходящим воздухом, равной 71300/( 10000 1,2) = 5,94 кДж/кг Исходя из Д = 5,94 кДж/кг и следует осуществлять дальнейшие построения процесса обработки воздуха

Следует отметить, что при переходе с летней производительности кондиционера (L= 16270 м3/час) на зимнюю (L= 10000 м3/час) потребуется изменение режима работы вентилятора, неизбежно связанное с возможными энергетическими и материальными затратами. Кроме того, изменение аэродинамического режима разветвленной сети воздуховодов неизбежно приведет к ее разрегулировке и потребители воздуха будут получать его в количествах, отличающихся от расчетных. В этой связи для нашего примера целесообразно рассматривать зимний режим работы кондиционера в том числе и с рециркуляцией в объеме 6270 м3/час, что позволяет СКВ работать в летнем и зимнем режиме эксплуатации с одинаковой производительностью. Изменение производительности СКВ при изменении периодов эксплуатации оправдано в случае гарантированного обеспечения устойчивого аэродинамического режима.

Изменение производительности кондиционера связано с применением регулирующих устройств. Самым невыгодным является дросселирование аэродинамического тракта. Более целесообразно применять в этом случае направляющие аппараты или дорогостоящие преобразователи частоты питающего тока.

Определим тепловлажностное отношение при ассимиляции теплоты и влаги приточным воздухом в обслуживаемом помещении е3.


По аналогии с теплым периодом года определим положение точек 1 ц 2, характеризующих параметры воздуха на входе в вентилятор и на входе в калорифер второго подогрева

В холодный период года в оросительных камерах применяется изоэнтальпийная тепловлажностная обработка воздуха С другой стороны, в калорифере первого подогрева изменение параметров воздуха осуществляется по линии dH = const Таким образом, на пересечении изоэнтальпы, проходящей через точку 2, и линии dH = const, проходящей через точку Я, находим точку 3, характеризующую параметры воздуха на выходе из калорифера первого подогрева или на входе в оросительную камеру

На пересечении линий /2 = const и ф = 100% находиться точка W, определяющая значение температуры воды в оросительной камере в установившемся процессе изоэнтальпийной обработки воздуха в прямоточном кондиционере для расчетных параметров зимнего периода г Одессы Параметры этой точки (Гц/=6,7°С) соответствуют параметрам мокрого термометра для воздуха, поступающего в оросительную камеру после калорифера первого подогрева

Таким образом, нами получен процесс обработки воздуха для холодного периода года в прямоточном кондиционере (рис 2 34а)

• Н-3 - подогрев наружного воздуха в калорифере первого подогрева,

• 3-2 - изоэнтальпийная обработка в камере орошения,

• 2-1 - подогрев в калорифере второго подогрева,

• 1-Г1 подогрев воздуха в вентиляторе,

• П-В - ассимиляция тепло и влагоизбытков в обслуживаемом помещении

Целесообразно рассмотреть и другой вариант обработки воздуха в прямоточном кондиционере - без использования калорифера второго подогрева В этом случае подогрев воздуха в калорифере первого подогрева осуществляется до точки 3- (рис 2 34а, точка находится вне поля рисунка) и далее воздух обрабатывается в изоэнтальпийном режиме в оросительной камере При равных расходах теплоты на нагрев воздуха в этом случае можно отказаться от калорифера второго подогрева и сократить затраты на приобретение оборудования кондиционера Уменьшится в этом случае и коэффициент эффективности обработки воздуха в оросительной камере, а следовательно и расход воды Применение такого способа обработки требует оценки устойчивости работы форсунок камеры При расходе (давлении) воды ниже некоторого минимального уровня на выходе из форсунок не формируется факел Кроме того, применение такого способа обрабозки усложняет процесс регулирования работы оросительной камеры


При построении процессов обработки воздуха для холодного периода года также рассмотрим и проведем оценку и других вариантов работы кондиционера. Это:

• построенный выше процесс обработки наружного воздуха в прямоточном кондиционере (L= 10000 м3/час) по маршруту «наружный воз- дух»-«первый подогрев»-«оросительная камера»-«второй подогрев» (Н-П-ОК-П) с обеспечением в помещении параметров te = 20°С и фв = 50% (рис. 2.34а);

• то же с использованием только первого подогрева, H-I7-OR (рис. 2.34а);

• обработка смеси наружного и рециркуляционного воздуха (L-16270 м3/час) по маршруту «наружный воздух»-«рециркуляция»-«первый подогрев»-«оросительная камера»-«второй подогрев» (Н-Р-П-ОК- П) с обеспечением в помещении параметров /в = 20°С и фв=50% (рис. 2.346);

• то же, но с применение утилизации теплоты, т.е. «наружный воздух»-«утилизация теплоты»-«рециркуляция»-«первый подогрев»- «оросительная камера»-«второй подогрев» (Н-У-Р-П-ОК-П, рис. 2.34в).

В последующих вариантах рассматривается обработка смеси наружного и рециркуляционного воздуха (L= 16270 м3/час), расчетная точка внутреннего воздуха в помещении имеет параметры te = 20°С и фв=40%. Это:

• «наружный воздух»-«утилизация теплоты»-«рециркуляция»-«оросительная камера»-«второй подогрев» СН-У-Р-П-ОК-П, рис. 2.34г);

• «наружный воздух»-«утилизация теплоты»-«рециркуляция»-«первый подогрев»-«оросительная камера» (Н-У-Р-П-ОК, рис. 2.34г);

• «наружный воздух»-«утилизация теплоты»-«рециркуяция»-«паровой увлажнитель»-«второй подогрев» (Н-У-Р-ПУ-П, рис. 2.34г).

При работе кондиционера в холодный период года с производительностью L= 16270 м3/час требуется дополнительная корректировка параметров приточного воздуха. В этом случае Д/ = ??л/?р = 71300/(16270-1,2) = = 3,65 кДж/кг. Таким образом, при работе кондиционера на производительности L = 16270 м3/час точка П находится ниже точки В на Д/ = 3,65 кДж/кг по линии луча процесса.

Рассмотрим процесс обработки воздуха с применением первой рециркуляции. Результат построения процесса обработки воздуха для этого варианта представлен на рис. 2.346. Принимаем, что подогрев воздуха и в вытяжном вентиляторе составляет 1°. Наружный воздух с параметрами Я смешивается с воздухом, имеющим параметры Р. Исходя из существующего распределения наружного (10000 м3/час = 13800 кг/час) и внутреннего (6270 м3/час =7500 кг/час) воздуха определяем положение точки смеси. Точка смеси занимает положение См- и находится в зоне пересыщенного состояния воздуха (ф > 100%). В этой связи в смеси произойдет выпадение конденсата и выделяемая теплота парообразования будет расходоваться на нагрев воздуха. Этот процесс может считаться изоэнтальпийным. По этой причине истинная точка, характеризующая параметры смеси (См), будет находиться на пересечении изолинии ф= 100% и 1=const, проходящей через точку См-. После смешения потоков наружного и рециркуляционного воздуха смесь по линии См-3 подогревается в калорифере первого подогрева. По линии 3-2 проходит адиабатическую (изоэнтальпийную) обработку в камере орошения и далее подогревается до параметров 1 в калорифере второго подогрева.

В холодный период года целесообразно рассмотреть и произвести технико-экономическую оценку применения утилизации теплоты уходящего воздуха. При этом распределение потоков будет следующим: 6270 м3/час удаляемого из помещения воздуха направляется на рециркуляцию, а 10000 м3/час пропускается через утилизатор теплоты и выбрасывается в атмосферу. Рассматривать вариант только утилизации теплоты без применения рециркуляции нецелесообразно. Теплота с рециркуляционным воздухом полностью возвращается в помещение, а при прохождении через утилизатор только часть ее передается приточному воздуху.

Определим для расчетных условий предельное значение температурного коэффициента эффективности утилизатора. Направляемый на утилизацию теплоты удаляемый воздух с параметрами Р может иметь предельные параметры соответствующие t > 0°С. В процессе охлаждения в утилизаторе уходящего воздуха с параметрами точки Р состояние его меняется по линии d- const и после температуры точки росы начинается выпадение конденсата. При снижении температуры ниже 0°С в условиях выпадения конденсата последний будет замерзать и перекрывать проходное сечение утилизатора. Для получения минимального запаса по надежности принимаем, что температура охлаждаемого в утилизаторе воздуха должна иметь температуру не ниже +1...2°С (точка 4). В этом состоянии воздух имеет энтальпию 11 кДж/кг. Энтальпия воздуха при параметрах Р равна 39,2 кДж/кг. Переходя из состояния Р в состояние 4 уходящий воздух передает нагреваемому наружному воздуху 39,2 - 11 = 28,2 кДж/кг теплоты. Это количество теплоты позволяет нагреть наружный воздух до температуры t=-18 + 28,2/1,005 = + 10°С. Следовательно, температурный коэффициент эффективности теплоутилизатора равен


По значению е- расходу удаляемого и наружного воздуха и следует подбирать теплоутилизатор. Теоретически вычисленное значение температурного коэффициента утилизации теплоты может быть обеспечено применяемыми в практике кондиционирования воздуха теплоутилизаторами. Однако, этот вопрос должен иметь более детальный анализ. Реальный процесс теплопередачи в утилизаторе (особенно в пластинчатых перекрестно точных рекуператорах) характеризуется высокой неравномерностью температурного поля пластин. При средней температуре уходящего воздуха после рекуператора в +1°С по линии входа наружного воздуха в рекуператор температура удаляемого воздуха будет значительно ниже и процесс обмерзания пластин начнется значительно раньше достижения средней температурой уровня +1 °С. Пластинчатые перекрестноточные рекуператоры применяются при температурах наружного воздуха в среднем выше -5°С. Теплообменники утилизаторы регенеративного типа с вращающимся рабочим органом имеют значительно более низкий уровень рабочих температур наружного воздуха.

Без учета особенностей работы конкретного утилизатора на рис. 2.34в в соответствии с проведенными расчетами представлен процесс обработки наружного воздуха с применением теплоутилизатора и рециркуляции. Последовательность процессов обработки воздуха следующая:

• Н—4 - нагрев наружного воздуха в утилизаторе;

• 4-См - смешение наружного воздуха с удаляемым из помещения;

• См-3 - подогрев смеси в калорифере первого подогрева;

• 3-2 - адиабатическое увлажнение в оросительной камере;

• 2-1 - подогрев воздуха в калорифере второго подогрева;

• 1-П - подогрев воздуха в вентиляторе;

• П—В - поглощение теплоты и влаги в обслуживаемом помещении;

• В—Р - подогрев удаляемого воздуха в вытяжном вентиляторе.

Анализ результатов приведенного построения процессов обработки воздуха показывает, что требуется незначительный подогрев воздуха в калорифере первого подогрева. При переходе на расчетную точку внутреннего воздуха с параметрами 20°С и 40% и после проведения аналогичных построений (рис. 2.34г) видим, что применение калорифера первого подогрева можно избежать. При этом снижается и коэффициент эффективности процесса обработки воздуха в оросительной камере.

Представляет интерес оценка использования пара при увлажнении воздуха в рассматриваемых вариантах кондиционирования. Увлажнение воздуха паром осуществим после смешения потоков наружного и рециркуляционного воздуха. Процесс показан на рис. 2.34г линией См-2-. Более предпочтительным является вариант подогрева воздуха в калорифере первой ступени по линии См-3- и увлажнение по линии. При увлажнении применяется насыщенный водяной пар с температурой 100°С. Дефицит влаги в воздухе составляет 5 -2,7 = 2,3 г/кг. При теплоемкости пара 2,04 Дж/г и охлаждении его от 100 до =13°С будет выделяться теплота Q = 2,04-2,3 (100- 13) = 408 Дж. При теплоемкости воздуха 1005 Дж/кг-К эта теплота обеспечивает нагрев воздуха на 408/1005=0,4°С. В соответствии с проведенными расчетами температура в точке 2- выше на 0,4°С температуры точки См. Такое же соотношение температур для точек 1 и 3. По затратам тепловой энергии этот способ обработки воздуха аналогичен предыдущему, но в данном случае из состава кондиционера выводится оросительная камера и исключается достаточно значимый расход электроэнергии на привод насоса Однако, при сравнительной оценке увлажнения воздуха в камере орошения и увлажнения с помощью парогенератора следует учитывать различную стоимость тепловой и электрической энергии При увлажнении воздуха в оросительной камере теплота испарения забирается из воздуха и затем восполняется на второй ступени подогрева за счет внешнего источника тепловой энергии При использовании парогенераторов на испарение воды затрачивается электрическая энергия, стоимость которой в настоящее время ощутимо выше стоимости тепловой энергии Сравнение этих двух вариантов увлажнения воздуха проводится ниже

Результаты расчетов в соответствии с проведенными построениями процессов обработки воздуха сведены в таблицу 2 59

Анализ полученных результатов позволяет сделать во многом вполне очевидные выводы

-утилизация теплоты и рециркуляция внутреннего воздуха позволяют значительно снизить энергопотребление установки кондиционирования воздуха,

- снижение расчетной влажности воздуха в холодный период года и повышение ее в теплый период года приводят к снижению энергетических затрат на подготовку воздуха,

- существует множество вариантов обработки воздуха, которые имеют различные затраты энергетических ресурсов на их реализацию

В соответствие с приведенными результатами для реализации оптимальных процессов подобрано оборудование французской фирмы «С1АТ» Выбор функциональных блоков осуществлен с помощью русифицированной версии программы подбора оборудования, разработанной производителем Кинотеатр используется в среднем 10 часов в сутки Продолжительность отопительного периода для г Одесса составляет тоя = 165 суток Средняя температура отопительного периода Подбор пластинчатого рекуператора по программе фирмы «С1АТ» показал следующее требуется рекуператор модели с байпасом стоимостью 2285 EUR, который устойчиво работает при наружных температурах не ниже -5°С При температуре ниже указанной возможно обмерзание пластин утилизатора Второй вариант утилизации теплоты уходящего воздуха - применение роторного утилизатора с переменной скоростью вращения модели 3 В247073 стоимостью 5467 EUR Этот рекуператор устойчиво работает и при наружной температуре -18°С Оценим экономическую целесообразность применения этих утилизаторов по максимальному значению температурного коэффициента эффективности е, соответственно равному 0,7 и 0,83 Общее количество утилизированной теплоты






Приведенные данные показывают, что применение утилизации теплоты экономически оправданно, даже с учетом того, что пластинчатый утилизатор без байпаса может работать при температурах выше -5°С. При температурах ниже -5°С часть наружного воздуха будет перепускаться по байпасу для исключения глубокого охлаждения удаляемого воздуха и намораживания снеговой шубы на пластинах.

Окончательно к установке принимаем роторный утилизатор, как работающий на всем диапазоне изменения температур наружного воздуха.

Форсуночная секция увлажнения с насосом и его принадлежностями (3 ВЗ 16342) имеет оптовую цену 4039 + 1686 = 5725 EUR. Паровой увлажнитель воздуха (SD ЗВЗ) имеет оптовую цену 5074 EUR. Стоимость функциональных блоков рассматриваемых двух вариантов увлажнения воздуха соизмерима. При применении парового увлажнителя для генерации пара используется электрическая энергия, стоимость которой в настоящее время значительно выше стоимости тепловой энергии. По этой причине окончательно для установки принимаем в качестве увлажнителя воздуха форсуночную камеру.

В соответствии с проведенными оценками для холодного периода года принимается следующий набор процессов обработки воздуха: «наружный воздух»-«утилизация теплоты в роторном утилизаторе»-«рециркуляция»- «тепловлажностная обработка в изоэнтальпийном режиме в форсуночной камере»-«подогрев воздуха в секции второго подогрева».

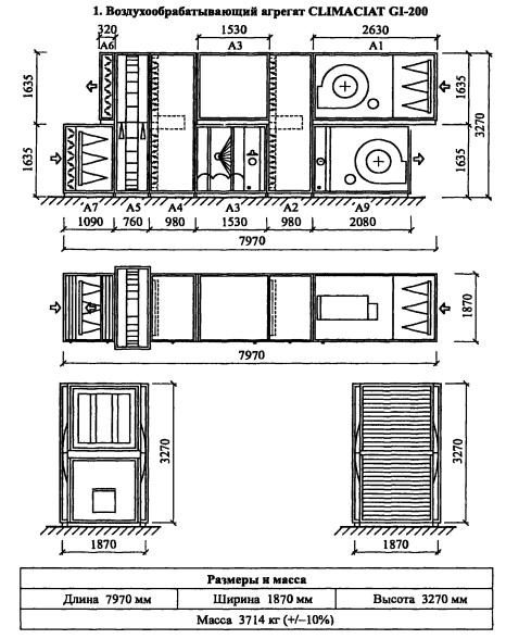
На основании проведенных расчетов для теплого и холодного периода года кондиционер окончагельно комплектуется следующими основными функциональными блоками: роторный утилизатор теплоты, камера смешения для рециркуляции воздуха в холодный период года, форсуночная камера, воздухоохладитель, камера смешения для рециркуляции в теплый период года, секция подогрева, вентиляторные секции, необходимый набор фильтров. Обозначение комплекта CLIMACIAT GI 200. Дополнительные элементы конструкции, схема кондиционера и характеристика блоков приводятся ниже (рис. 2.35).




Рассмотрим пример подбора кондиционера на базе изделий фирмы «Веза», РФ. В отличие от других производителей эта фирма предоставляет потребителям своей продукции достаточно широкую информацию о методах подбора ее оборудования, в том числе и аналитические методы расчета параметров применяемого оборудования. Исходные данные для примера расчета СКВ 2-го класса представлены в таблицах 2.63 и 2.64.



Продолжительность мероприятий, проводимых в концертном зале не более 3 часов в сутки, кроме того, помещение зала используется по назначению не каждый день. По этой причине (на основании полученных выше материалов) при разработке системы кондиционирования воздуха не будет применяться утилизация теплоты, как не имеющая экономического обоснования.

Последовательность решения задачи для теплого периода года:

1. Наносим на 1-d диаграмму зону оптимальных параметров внутреннего воздуха и параметры наружного воздуха (рис. 2.36);

2. Вычисляем тепловлажностное отношение, кДж/кг


4. По аналогии с вышерассмотренными примерами наносим характерные точки состояния воздуха для теплого периода года (Я, В, У, Р, П - соответственно наружный, внутренний, уходящий, рециркуляционный и приточный воздух, а также точки 7, характеризующей состояние воздуха на входе в вентилятор). При этом учитываем (в соответствии с вышеприведенной информацией), что для теплого периода года целесообразно параметры расчетной точки назначать исходя из максимального значения относительной влажности и температуры из диапазона оптимальных параметров (te = 22°С и фв = 60%,), а для холодного - минимальные, т.е. te = 20°С и срв = 30%.

Принято также, что подогрев воздуха в приточном и вытяжном вентиляторах составляет 1 °С.

5. Воздухообмен для теплого периода года



7. Соотношение G- > G( показывает, что требуется рециркуляция в количестве GP=23310 - 12000= 11310 кг/час. В связи с тем, что рециркуляция целесообразна, т.к. смесь воздуха будет иметь более низкую энтальпию, а это приводит к снижению расхода холода при эксплуатации СКВ.

8. Анализ взаимного положения характерных точек процесса показывает, что для расчетных параметров требуется незначительная осушка воздуха и более значимое охлаждение. Наиболее целесообразно в этом случае избежать применения противоположных процессов, т.е. нагрева- охлаждения, и исключить второй подогрев. Применим следующую технологию обработки воздуха. Часть приточного воздуха охлаждается в воздухоохладителе, а часть его в виде воздуха второй рециркуляции подмешивается к нему после охлаждения. Полученная смесь должна иметь параметры точки 1. Для нахождения параметров охлаждаемой части приточного воздуха проводим через точки См1 (параметры воздуха после первой рециркуляции) и точку 1 линию. На этой линии в точке пересечения ее с ф = 100% и будут находиться параметры охлаждаемой части воздуха, т.е. точка 0. Современные высокоэффективные воздухоохладители обеспечивают при работе в расчетном режиме относительную влажность воздуха на выходе близкую к 100%. По этой причине и принято, что точка 0 и находится на линии ф= 100%. Соотношение отрезков и позволяет найти количество воздуха второй рециркуляции. Соотношение же отрезковпозволяет найти количество воздуха первой рециркуляции. Совместное решение задачи о нахождении объемов первой и второй рециркуляции в этом случае возможно методом последовательных приближений. А именно:

1. Задаемся произвольно объемом первой рециркуляции и определяем положение точки.

2. Определяем положение точки 0 и из соотношения отрезков ?0-i и t I-CMI находим первое приближенное значение объема второй рециркуляции G2.

3. Уточняем объем первой рециркуляции Gi = G - G2 и задачу повторяем от п. 1 до удовлетворительной сходимости результатов.

Соотношение отрезков после нахождения их окончательного положения позволяет найти соотношение соответственно между неохлаждаемой (воздух второй рециркуляции) и охлаждаемой (Go = GH + G) частями обрабатываемого воздуха.


Соответственно расход воздуха через воздухоохладитель 23310 - 6585 = = 16725 кг/час.

Воздух в воздухоохладителе охлаждается до температуры 12,2°С и снижает свое влагосодержание. Температура холодоносителя в воздухоохладителе на 3...5 градусов ниже, т.е. температурный уровень его составляет 7-9 градусов



Последовательность построения процесса обработки воздуха для холодного периода года:

В зоне оптимальных параметров выделяем расчетную точку и наносим параметры наружного воздуха для холодного периода года (рис 2 36), при этом учитываем (в соответствии с вышеприведенной информацией), что для холодного периода года целесообразно параметры расчетной точки назначать исхода из минимального значения относительной влажности и температуры из диапазона оптимальных параметров (te = 20°С и рв = 30%),

2 Вычисляем тепловлажностное отношение, кДж/кг


3 Теплоизбытки в холодный период года более чем в два раза ниже уровня избыточной теплоты для теплого периода года В этой связи принимаем, что градиент температур но высоте помещения кинотеатра незначителен и температура уходящего воздуха равна температуре внутреннего воздуха

4 Принимаем, что производительность кондиционера и в зимнем режиме эксплуатации равна производительности его в летнем режиме G = G3 = Gj=23310 кг/час или 19425 м3/час. Это позволяет сохранить аэро-динамический режим сети и избежать мероприятий по переводу работы кондиционера с одного режима на другой.

При меньших теплоизбытках для холодного периода года раздача количества воздуха, характерного для теплого периода года, требует уменьшения расчетной разности температур. Находим исходя из этого температуру приточного воздуха


6. При общей подаче воздуха в помещение 23310 кг/час санитарная норма подачи наружного воздуха составляет 12000 кг/час. Следовательно, рециркуляция равна 11310 кг/час. Соединяя точки Р и Я, в соответствии с соотношением наружного и рециркуляционного воздуха находим точку смеси См, гСм=-3°С.

7. Для tn и ti температура точки росы составляет -1°С. В этих условиях работа оросительной камеры осуществляется вблизи =0°С и сопряжена с вероятным появлением процесса обмерзания конструкции. Принимаем, что температура воды при адиабатической обработке воздуха равна tw=+2°C. Проводя через точку W изоэнтальпу, на пересечении с линией d=const, проходящей через точку См, находим точку 5, характеризующую состояние смеси после подогрева в калорифере первого подогрева. Процесс 3—2 - адиабатическое увлажнение, 2-1 - подогрев воздуха в калорифере второго подогрева (рис. 2.36).

Коэффициент адиабатической эффективности процесса увлажнения

При ЕА < 0,65 ввиду уменьшения расхода воды и снижения давления наступает неустойчивый режим работы форсунок. Следовательно, выбранный режим тепловлажностной обработки не может быть реализован.

Принимаем параметры расчетной точки внутреннего воздуха te = 20°С и фв = 40% и строим по аналогии с предыдущим вариантом процесс обработки воздуха (рис. 2.36). Обозначение характерных точек принято аналогичным предыдущему варианту.

Коэффициент адиабатической эффективности процесса увлажнения для этого варианта


Это реализуемый режим работы оросительной камеры.

В этом случае невозможно рассматривать вариант работы кондиционера без калорифера второго подогрева. Нагрев воздуха в калорифере первого подогрева до точки 3" и затем адиабатическая обработка его в ороси- тольной камере по процессу 3"-1 невозможна. Коэффициент адиабатической эффективности процесса 3-1 ~ 0,5, т.е. меньше установленного нижнего предела для блоков контактного увлажнения фирмы «Веза».

Теплоснабжение и вентиляция. Курсовое и дипломное проектирование. /Под ред. проф. Б. М. Хрусталева - М.: Изд-во АСВ, 2005.

на главную