ВЕРТИКАЛЬНЫЕ СИСТЕМЫ ОТОПЛЕНИЯ

Вертикальные двухтрубные системы водяного отопления с искусственной циркуляцией бывают такие: с верхней и нижней прокладкой распределительной магистрали (рис. 3); тупиковые и с попутным направлением движения воды в магистралях; с односторонним и двусторонним присоединениями отопительных приборов к стояку.


В связи с характерной для двухтрубных систем вертикальной начальной и эксплуатационной разрегулировкой эти системы применяют для отопления только малоэтажных зданий (высотой в два этажа с верхней прокладкой распределительной магистрали и высотой до 5 этажей — с нижней прокладкой).

В двухтрубных системах водяного отопления перепад температур воды Д/пр в каждом приборе постоянен и равен


Точность расчета отопительных приборов повышается при учете понижения температуры воды в магистральных трубопроводах на пути от теплового пункта (или теплогенератора) до места присоединения стояка с рассчитываемым прибором.

С учетом охлаждения воды в трубопроводах Д?т определяется по формуле


Однотрубные системы отопления бывают: с верхней прокладкой распределительной магистрали; с нижней прокладкой обеих магистралей; с нижней прокладкой распределительной и верхней прокладкой сборной магистрали (с «опрокинутой» циркуляцией); с тупиковым и попутным движением воды в магистралях; с односторонним и двусторонним присоединением отопительных приборов; с приборными узлами проточного, проточно-регулируемого типов и с замыкающими участками. Однотрубные системы отопления широко распространены в многоэтажных зданиях, так как по сравнению с двухтрубными более экономичны, эстетичны и имеют более высокую тепловую и гидравлическую устойчивость.

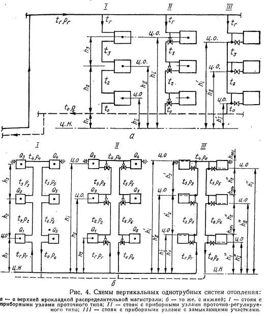
Вертикальные однотрубные системы отопления с верхней прокладкой распределительной магистрали наиболее просты в эксплуатации и применяются в зданиях с чердаком или техническим этажом. На рис. 4, а приведена часть такой системы с тупиковым движением воды в магистралях и наиболее распространенными на практике конструкциями стояков. Одностороннее присоединение приборов позволяет стандартизировать длинны ответвлений к приборам и обеспечить индустриальный метод заготовки. Смещение обходного или замыкающего участка относительно оси стояка-позволяет компенсировать тепловые удлинения в нем, а в приборных узлах с замыкающими участками, кроме того, увеличивает коэффициент затекания а воды в прибор.

Коэффициент затекания а = Gnp/GCT представляет собой отношение массы воды, поступающей в прибор Gnp, к массе воды, перемещаемой по стояку (ветви) GCT. Величина а зависит от сочетания диаметров труб приборного узла (стояка dCT, ответвлений к прибору d, замыкающего участка d3y), скорости воды в стояке, способа присоединения отопительных приборов к нему (одностороннего или двустороннего), расположения замыкающего участка (осевого или смещенного) и естественного давления в малом кольце циркуляции Арем, включающем отопительный прибор, ответвления к нему и замыкающий участок.






Рекомендуемые схемы однотрубных стояков при нижней прокладке обеих магистралей приведены на рис. 6. Они могут выполняться с приборными узлами проточного, проточно-регулируемого типов, с замыкающими участками.

Рекомендуемые сочетания диаметров стояка, ответвлений к приборам, обходного или замыкающего участков в вертикальных и горизонтальных унифицированных приборных узлах однотрубных систем отопления с верхней и нижней прокладками магистралей, а также усредненные значения коэффициентов затекания приведены в табл. 1 и 2.

Для восстановления циркуляции-воды после отключения приборов и во избежание нарушения циркуляции в их подъемных участках при эксплуатации П-образных стояков со смещенными замыкающими участками необходимо обеспечить расход воды не менее величины GMHH [1, 8]. Значения GM при различных сочетаниях диаметров приборных узлов приведены в табл. 3.

В вертикальных однотрубных системах отопления с верхней прокладкой распределительной магистрали и с нижней прокладкой обеих магистралей может применяться тупиковая и попутная схема движения воды в магистралях.

Использование попутных схем в ряде случаев вызывает перерасход труб на магистральных участках, но упрощает увязку потерь давления в циркуляционных кольцах.

Системы отопления. Проектирование и эксплуатация/ А. Я. Ткачук, Е. С. Зайченко, В. А. Потапов, А. П. Цепелев.— К. Будiвельник, 1985.

на главную