ПРОЕКТНОЕ (ДОКУМЕНТАЛЬНОЕ) ПРЕДСТАВЛЕНИЕ ЗАВОДА

Приведенное в предыдущем разделе общее назначение производственных цехов предполагает определенную гуманитарную и техническую подготовку студента, создание собственного образа металлургического предприятия, цеха, знание металлургической терминологии и основ технологии. Особенность недокументального представления завода (индивидуальность образа) в значительной степени определяется профессиональным уровнем специалиста. Правильность утверждения становится очевидной, если сделать попытку такой виртуальный образ зафиксировать, задокументировать, закрепить, то есть представить в виде документа.

Сам образ завода от образа отдельной единицы оборудования, агрегата, сооружения отличается размытостью. И это принципиально. Отдельная единица оборудования (машина) как вид пас портно определена (идентифицируема) заводом изготовителем (конструкторской документацией — вплоть до отдельной далее неделимой, не обязательно покупной детали — простейшего изделия). Ее образ рождается в результате непосредственного наблюдения, рассмотрения, созерцания; образ как отражение прототипа соизмерим с масштабами человеческого восприятия, его размерами. Он фотографически идентичен для покупателей, обсуждающих параметры, отличающиеся при приобретении у двух штукособей в пределах паспортных характеристик, обычно гауссовых. Индивидуальность проявляется не в индивидуальности данного изделия как штукиособи, а в индивидуальном отношении потребителя (покупателя) к данной модели (марке, типопредста вителю), которая имеет всегда наименование (название) — имя собственное. В данном случае имя есть факт определения, выделение вида, его название; и это отражает однозначность и, если можно так выразиться, ньютоновскую определенность.

Металлургический завод, вообще говоря, не обойдешь и не осмотришь. Получить образ функционирующего (действующего) завода непосредственным осмотром может квалифицированный специалист (каждый — в своей области). И лишь квалифицированный специалист, точнее — менеджер высокого уровня, представляет образ дан него завода в целом и встраивает его в систему уже существующих у него образов, отмечая различия в известных ему областях (технологии, технике, компоновках, организации управления, качестве и сортаменте готовой продукции и др.). Чем ниже квалификация, тем бледнее образ: оказываются неувиденными индивидуальные характеристики и отличия объекта. Таким образом, способ повышения квалификации — выстраивание для себя системы образов (индивидуальной, как личная книжка адресов).

Проектное видение завода с технологической точки зрения может быть представлено схемой движения металла (в частности, балансовой), менее (рис. 1.12) или более (рис. 1.13) конкретизированной. Инвестор, строители, согласовывающие и контролирующие организации чаще обращаются к генеральному плану (рис. 1.14) или, точнее, к его схеме (рис. 1.15), на которой представлены цехи, отдельные здания и сооружения.

Рис. 1.12. Балансовая схема движения металла

Такой схемой чрезвычайно трудно (если вообще возможно) руководствоваться.

Очевидно, что генплан завода (действующего или проектируемого), равно как и цеха (рис. 1.16), не дает ответа на множество ключевых технологических и иных вопросов. Более детальное представление можно получить из схемы (рис. 1.17), но важно осознавать, что детализация тоже имеет свои границы — техноценологические ограничения, запрещающие чрезмерную иерархию.

Можно ли адекватно представить завод по перечню образующих объектов (табл. 1.7)? К сожалению, нет.

Прежде всего, приведенный перечень не совпадает (и не может совпасть — техноценологи ческое ограничение) с экспликацией генплана. Например, не существует доменного цеха как здания, подобно прокатному или механическому цехам, паровоздуходувной станции. На генплане изображены отдельно стоящие доменные печи (есть цехи, «образованные одной домной»), кауперы (воздухонагреватели), бункерная эстакада, тракт шихтоподачи с электроподстанцией, разливочные машины, депо ремонта чугуновозов, мастерская, склад чугуна и склад граншлака, административнобытовое здание (на нем и висит чугунная доска: Доменный цех) Прокатные цехи чаще располагаются под одной крышей, образуя блок. Могут образовывать блок (находиться в одном здании) энергоремонтный, электроремонт ный цехи, центральная электротехническая лаборатория и трансформаторномасляное хозяйство. Блок кислородных зданий — это несколько зданий, возможно, расположенных в разных частях завода.

Коксохимическое производство — всегда множество зданий и сооружений, как и конвертерный цех (интересно сравнение коксохимического и сталеплавильного производств с точки зрения образа технологии и отражения этого образа на генплане). Основные производства территориально локализованы, а многочисленные и разнообразные насосные, другие сооружения и сети водоснабжения и канализации, электрического, теплосилового, газового хозяйств, транспортные сооружения и сооружения связи (информационные), административнобытовые помещения настолько многочисленны, что рассредоточены по заводу и не всегда могут быть названы как на генплане, так и в соответствующей части проекта.

Каждый завод принадлежит к тому или иному виду, кластеризуется по набору характеристикпоказателей. Его «индивидуальность» проявляется, в частности, в названии цехов (объектов). Существует техноценологический запрет на возможность одинакового набора (состава) цехов, на идентичность и неотличимость двух заводов (известна кончившаяся полной неудачей попытка

Рис. 1.13. Предполагаемый материальный баланс и поток материалов

Рис. 1.14. Металлургический завод в Искендеруне, Турция Основные производства 1 — коксовые батареи, 2 — цех подготовки сырья к доменной плавке, 3 — доменные печи, 4 — кислородноконвертерный цех, 5 — непрерывный заготовочный стан 850/700/500, 6 — непрерывный мелкосортный стан 250, 7 — непрерывный проволочный стан 250, 8 — среднесортнобалочный стан 700, 9 — тепловозовагонное депо, 10 — автогаражное хозяйство

Рис. 1.15. Принципиальная схема Оскольского электрометаллургического комбината 1 — трасса гидротранспорта, 2 — цех окомкования, 3 — склад окатышей 4 — цех металлизации, 5—административный центр, 6 — склад сыпучих материалов, 7 — ремонтные цехи, 8 — электросталеплавильный цех, 9—сооружения оборотного водоснабжения, 10 — кислородная станция, 11 — вспомогательные цехи, 12 — скрапоразделочный цех, 13 — отделение отделки проката, 14 — прокатный цех, 15 — отделение переработки шлаков (стрелкой показано возможное расширение комбината, штриховыми линиями — расширение отдельных цехов)

Рис. 1.16. План конвертерного цеха Челябинского металлургического завода после реконструкции К1 — КЗ — конвертеры, 1 — установка вакуумирования, 2 — установка для продувки стали аргоном, 3 — механическая мастерская, 4 — машинный зал конвертеров, 5 — мастерская огнеупоров, 6 — эстакада шлакоуборки

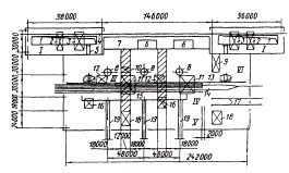
Рис. 1.17. Схема цеха с 300т конвертерами —V— пролеты соответственно шихтовый, конвертерный, загрузочный, перестановки шлаковых ковшей, ремонта сталеразливочных ковшей, VI — участок подготовки ферросплавов, 1 — яма для скрапа, 2 — кран магнитогрейферный 15/15 т, 3 — кран мостовой с поворотной тележкой для транспортировки совков 130 т, 4 и 5 — пути подачи скрапа в шихтовый и загрузочный (два) пролеты, 6 — помещение газоочистки, 7 — элек тромашинное помещение, 8 — конвертер 300 т, 9 — кран для транспортировки ферросплавов 20 т, 10 — кран для обслуживания конвертора 80 т, 11 — заливочный кран 400—100/20 т, 12 — машина 2x130 т для завалки скрапа, 13 — путь завалочной машины, 14 — путь подачи чугуна, 15— центральный пост управления

Упорядочить структуру крупных проектных институтов — Гипромеза, Укргипромеза, Ленгипро меза, Уралгипромеза, Грузгипромеза, Сибгипро меза были введены в том числе одинаковые названия отделов)

Обратимся к табл. 1.7 На ряде заводов известковообжиговый цех включается в производственные объекты обслуживающего назначения или как отделение — в состав конвертерного цеха. Обычно выделяют скрапоразделочный цех (скрапобазу), и в него входит копровое отделение (не цех) Из обжимного цеха нередко выделяют самостоятельную единицу непрерывнозаготовочный стан, а сортовые станы объединяют в один цех

Термическое отделение прокатных цехов далеко не всегда представляется строчкой в списке объектов основного производственного назначения. Подобный анализ для других заводов полезно провести с целью лучшего осознания обязательности индивидуальности каждого завода (цеха) как особи и наличия постоянной составляющей, которая позволяет классифицировать завод (цех), тем самым ставя вопрос о похожести заводов (цехов), о возможности использовать завод (цех) в качестве аналога по интересующим свойствампараметрам (опираясь на утверждение, что они одного вида) Таким параметром обычно принимается определяющий, который характеризует основную технологию цеха (важнейший параметр агрегата, установки, сооружения) Примером может служить перечень конвертерных и сталеплавильных цехов с указанием основной характеристики агрегатов, определяющих цех Количество и емкость агрегатов, сталеплавильных цехов, входящих в подсистему «Сталеплавильное производство черной металлургии»

Таблица 19 Перечень конкретных прокатных (тонколистовых) станов (особей)

Подобное сравнение (по одному параметру) для блока прокатных цехов провести нельзя Необходимо представлять перечень прокатных станов, что позволяет сделать иерархический шаг вниз: рассмотреть состав блока прокатных станов конкретного завода (табл. 1.8), а затем сравнить каждый стан с другими станами такого же вида (табл. 1.9).

Следующим шагом в представлении более ясного образа завода является приведение основных показателей по агрегатам (установкам, сооружениям) или предъявление перечня отделений и участков по каждому из цехов. Важно подчеркнуть, что если бы и был составлен такой единый перечень (техноценологически это еще теоретически возможно), то уже не найдется специалист, который охарактеризовал бы назначение каждого участка (по продукции), состав установленного оборудования (техники), используемую технологию, применяемые исходные материалы и другие ресурсы, включая невещественные, экологические воздействия (выбросы).

Для доменного цеха (см. рис. 1.12) основные показатели одной доменной печи:

Для отделения непрерывной разливки стали предусмотрена установка двух четырехручьевых сортовых МНЛЗ криволинейного типа с разливкой всей стали «плавка на плавку». Годовой объем производства литой заготовки 1 млн. т. При прямой прокатке или горячем посаде за транспортным рольгангом МНЛЗ предусматривается использование термосовнакопителей. При подаче заготовок на стан 350 их режут на длины 5,0 и 2,5 м.

Обшая характеристика прокатного производства может быть дополнена сведениями о выпуске 500 тыс. т/год дефицитных видов проката, в основном рессорной стали и фасонных профилей общего и отраслевого назначения из углеродистых, низколегированных, легированных конструкционных и рессорнопружинных сталей (табл I 10). Полезно соотнести таблицу с рис 1.13. и сделать вывод, что проектировщику достаточно табличных данных.

Существенно иной образ завода (цеха) складывается, если от показателей перейти к составам отделений и участков цеха: он не соответствует, а по техноценологическим ограничениям и не может соответствовать генплану Иногда тот или иной участок трудно выделить в пространстве, а то или иное отделение (объект) специфично, и индивидуальность его определяется индивидуальностью завода в целом В качестве примера можно сравнить составы двух электросталеплавильных цехов (условно А и Б)

ЭСПЦ (А):

Печное отделение
— участок выплавки стали (включая оборудование для подачи кислорода в печь, отбора проб, замера температуры, свинчивания электродов),
— участок механизации подачи сыпучих материалов и ферросплавов в электропечь и ковш,
— участок прокаливания и взвешивания ферросплавов;
— участок холодных ремонтов (футеровки) электропечи (подины, свода и кожуха),
— участок ремонта и подготовки сталеразливочных ковшей (включая участок подготовки и навешивания шиберных затворов);
— участок внепечной обработки стали;
— участок ремонта и подготовки оборудования внепечной обработки стали,
— котелутилизатор;
— участок скачивания шлака из печи;
— участок предварительного нагрева лома.
Отделение непрерывной разливки стали.
Отделение разливки стали в изложницы.
Отделение первичной переработки шлака
Отделение комплексной переработки скрапа
Экспресслаборатория
АБК со столовой.
Пешеходные галереи.
Газоочистка.
Дымовая труба.

ЭСПЦ (Б):

Электросталеплавильный цех.

Главный корпус ЭСПЦ:
— бункера металлизованных окатышей;
— отделение приемных бункеров с силосным складом;
— отделение расходных бункеров с конвертерными галереями и разгрузочными бункерами извести;
— установка для перегрузки десульфурирую щих реагентов;
— пневмотранспорт порошков;
— электропечи № 14;
— электропечь № 5;
— электропечь № 6;
— пневмопочта проб;
— футеровочное отделение;
— остывочная площадка;
— центральная вентиляционная станция ЭСПЦ.

Оборотный цикл водоснабжения ЭСПЦ.

АБЗ со столовой ЭСПЦ.

Цех окомкования:
— установка гидротранспорта железорудного концентрата;
— установка по производству окисленных окатышей;
— установка разгрузки бентонита.

Корпус приготовления бентонитового порошка. Оборотный цикл водоснабжения.

АБЗ цеха окомкования.

Столовая цеха окомкования (заготовочная).

Цех металлизации:
— установка сероочистки природного газа;
— система транспорта и склады окисленных окатышей;
— система транспорта и загрузки шахтных печей;
— установка обеспыливания вне установок металлизации;
— участок шахтных печей;
— участок конверсии природного газа;
— теплоутилизационные установки за установками металлизации;
— система транспорта и хранения металлизо ванного продукта;
— установка брикетирования со складами брикетов и мелассы;
— установка отгрузки окатышей;
— отделение подготовки катализаторов;
— оборотный цикл водоснабжения отделения подготовки катализаторов;
— отделение производства катализаторов;
— оборотный цикл водоснабжения отделений производства катализаторов
— участок подвода и отвода сред;
— водное и сетевое хозяйство.

АБЗ цеха металлизации со столовой.

В отличие от однозначности образа и документального представления единичного оборудования (техники), применяющейся технологии, используемого материала, выпускаемой продукции, образующихся отходов образ любого объекта на каждой ступени иерархии (завод — производство — цех — отделение — участок) неоднозначен для специалиста и адекватно документально непредставим. Принятие лучшего решения, в этих условиях, обеспечивается высокой квалификацией, информированностью, развитой интуицией, своеобразным озарением.

В. А. Авдеев, В. М. Друян, Б. И. Кудрин, Основы проектирования металлургических заводов, М., 2002

на главную