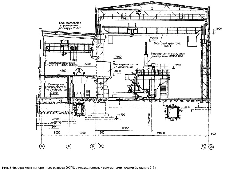
Ёмкость и производительность электропечейВ ЭСПЦ, сооружавшихся в последние десятилетия, предусматривалась в основном установка дуговых электропечей номинальной емкостью 100 т. Отдельные цехи сооружались с электропечами емкостью 50 и 150 т. Печи емкостью 50, 100 и 150 т входят в типовой ряд электропечей. В СССР электропечи изготавливались только типового ряда, что сокращало количество типоразмеров основного обслуживающего оборудования (завалочных и разливочных кранов, сталеразливочных ковшей, установок внепечной обработки стали, МНЛЗ) Номинальная емкость электропечи раньше — количество жидкой стали в печи с проектной футеровкой, в последнее время — количество жидкой стали, сливаемой в ковш за одну плавку. В первом случае вся сталь и весь шлак, находящиеся в печи, полностью сливаются в сталеразливочный ковш; во втором — около 85 % стали, находящейся в печи, сливается в ковш, а остальная сталь и практически весь шлак остаются в печи. Такой способ, распространенный в настоящее время, называется работой с “болотом”. При этом фактическая масса плавки в печи номинальной емкостью 100 т достигает примерно 118 т. Это следует учитывать при проектировании ЭСПЦ Дуговая электропечь или принимается стандартной, изготавливаемой отечественной промышленностью, или на ее конструирование и изготовление разрабатывается (с участием проектной организации) техническое задание ![]()
Современная дуговая сталеплавильная печь оснащается печным трансформатором мощностью 0, 7—1,0 MB А на I т емкости печи, эксцентрическим донным или сифонным выпуском жидкого металла в ковш, водоохлаждаемыми панелями в стенах и своде, газокислородными горелками, манипулятором для ввода кислорода расходуемыми трубками, манипулятором для вдувания углеродсодержащего материала в струе кислорода, высокоскоростными механизмами перемещения электродов, подъема и отворота свода, наклона печи, работающими с использованием негорючей жидкости для гидроцилиндров, устройством для загрузки материалов сверху через отверстие в своде, патрубком в своде для отсоса газов, устройствами для измерения температуры и взятия проб, вычислительными комплексами для управления технологическим и энергетическим режимами работы электропечи Технические данные отечественных дуговых и сталеплавильных печей емкостью (по последним проектам) 50, 100 и 150 т
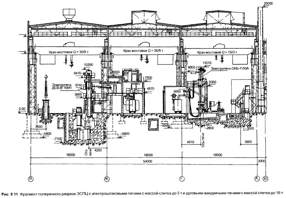
ДСП150И1 выполнена для работы с использованием в шихте 50—70 % металлизованных окатышей и для работы на 100 % скрапа не предназначена Время расплавления под током применительно к Белорусскому металлургическому заводу 40 мин На рис 5 12 приведены габаритные и установочные размеры электропечи ДСП100И7, на основании которых производится проработка установки печи в цехе Важным при проектировании цеха является правильность определения производительности печи Завышение производительности печи и, соответственно, цеха ведет к излишним капитальным затратам на строительство Цех не достигнет заданной производительности, и не будут получены проектные показатели (потери и в эксплуатационных затратах) Занижение производительности печи и цеха ведет к неиспользованию их возможностей Все оборудование цеха и все системы будут рассчитываться на заниженную производительность Это связано с неоправданными потерями, и потребуются инвестиции на “расшивку” узких мест Производительность печи зависит от ряда факторов емкости печи, мощности трансформатора, технологии выплавки стали, режима работы электропечи, планировки пеха, характеристики обслуживающих печь механизмов, внепечной обработки стали, конструктивных особенностей электропечи, организации работы в цехе Чем выше производительность цеха, тем, как правило, выше техникоэкономические показатели его работы, экономическая эффективность Стоимость цеха при выбранных в проекте электропечи и обслуживающего ее оборудования имеет определенную величину Чем больше тонн выплавит печь, тем меньше удельные капитальные вложения Это относится и к удельным энергоресурсам, и к производительности труда Емкость печи (печей) должна соответствовать потребности в металле Следует проектировать цех, который можно построить с минимальными капитальными вложениями и в то же время получить при его эксплуатации оптимальные техникоэкономические показатели Производительность печи, т/ч, на предпроектных стадиях (ТЭО, ТЭР и др ) принимается обычно по нормам технологического проектирования электросталеплавильных цехов на момент выполнения работы, а при выполнении проекта рассчитывается по формуле П = 2AgnlT, где g — масса плавки, равная емкости печи в тоннах жидкой стали, п — число рабочих суток в году, определяемое разностью между их календарным числом (365) и временем простоев электропечи, 24 — часов в сутках, Т — длительность, ч, плавки “от выпуска до выпуска” Простои электропечи обусловлены ремонтами капитальным, текущим (холодным) и горячим Ремонты первых двух видов плановые, третьего — аварийные Длительность плавки в электропечи при работе на 100 % скрапа складывается из времени проведения следующих периодов плавки заправка печи и замена электродов, загрузка скрапа в печь, плавление скрапа, рафини ровка жидкого металла, выпуск плавки в ковш Как видно из рис 5 13, длительность плавки в электропечах за последние 30 лет резко сократилась В i960—1975 гг. в развитых странах Европы наиболее распространенной являлась емкость электропечей 60 т, а позже — 100 т. В 1960 г, длительность плавки составляла 180 мин. В результате повышения удельной мощности печных трансформаторов с 350 до 500 кВА/т и применения кислорода для продувки металла длительность плавки к 1965 г. сократилась на 30 мин (сокращение периода плавления на 10 мин и периода рафинировки — на 20 мин). ![]() ![]() В период 1965—1975 гг. наряду с дальнейшим увеличением удельной мощности печных трансформаторов с 500 до 600 кВА/т, начали внедрять средства внепечной обработки стали, в первую очередь — вакуумирование стали и продувка стали газами, что позволило сократить длительность плавки еще на 30 мин (в основном за счет расплавления). За пятилетие 1975—1980 гг. в практику электросталеплавильного производства внедрены водоохлаждаемые стены и своды электропечей, газокислородные горелки, автоматизация подачи легирующих материалов и ферросплавов. Эти усовершенствования в процессе электроплавки одновременно с повышением удельной мощности печных трансформаторов с 600 до 700 кВА/т позволили сократить еще на 30 мин длительность плавки (практически всех периодов) до 90 мин. В последующем существенную роль в сокращении длительности плавки сыграли новый способ внепечной обработки стали с дуговым подогревом (АКОСМ) и подогрев скрапа вне печи. Затем за счет расширения использования подогрева скрапа вне печи, АКОС и оснащения электропечей эксцентриковым донным выпуском удалось сократить длительность плавки в электропечи еще на 10 мин. В. А. Авдеев, В. М. Друян, Б. И. Кудрин, Основы проектирования металлургических заводов, М., 2002 |
|