ОДНОТРУБНЫЕ СИСТЕМЫ ВОДЯНОГО ОТОПЛЕНИЯ С ИСКУССТВЕННОЙ ЦИРКУЛЯЦИЕЙ ТЕПЛОНОСИТЕЛЯ

Рассмотренные в гл. 6 вертикальные однотрубные системы отопления с естественной циркуляцией — с обходными участками или проточные, при включении в сеть их теплопроводов насоса становятся системами с искусственной циркуляцией. Гидравлический расчет таких систем может производиться любым из методов, изложенных в гл. 4.

Вследствие большей экономичности, большей тепловой и гидравлической устойчивости и большого радиуса действия однотрубные системы отопления широко используются. Массовое внедрение получили впервые разработанные в Советском Союзе новые конструктивные решения и новые научно обоснованные методы расчета однотрубных систем с нижней разводкой магистральных теплопроводов, П-образными стояками, унифицированными узлами, в частности проточно-регулируемые однотрубные системы с трехходовыми крапами у отопительных приборов.

Расположение стояков у откосов оконных проемов и одностороннее присоединение смещенных относительно оси окна отопительных приборов с подводками стандартной длины (380+20 мм) позволяют обезличенно заготавливать радиаторные узлы таких систем без предварительных замеров. Подобные конструктивные решения этих систем обеспечивают их высокую индустриальность, а за счет повышения сборности снижается трудоемкость работ. П-образные стояки однотрубных систем с нижней разводкой магистралей имеют подъемную и опускную части. К обеим частям стояка отопительные приборы присоединяются только с одной стороны. При пуске системы отопления воздух удаляется через краны, установленные на отопительных приборах верхних этажей, а для удаления воздуха из отопительных приборов верхних этажей в период работы системы необходимо обеспечивать скорость движения воды в стояках не менее 0,25 м/с. Минимальные расходы теплоносителя по стоякам для соблюдения этого условия приведены в табл. 7.3, а допустимые максимальные скорости теплоносителя в теплопроводах системы и отвечающие им расходы его даны в табл. 7.4.


Такие системы могут осуществляться в виде проточных регулируемых с трехходовыми кранами или с замыкающими участками и регулирующими кранами КРП, устанавливаемыми на нижних подводках. Замыкающие участки могут быть осевыми или смещенными. Последние применяются в многоэтажных зданиях, так как при этом хорошо обеспечивается компенсация тепловых удлинений стояков.



Для создания единой технологии изготовления и монтажа, обезличенного и централизованного изготовления радиаторных узлов, еще большего снижения трудоемкости и повышения качества монтажно-сборочных работ ВНИИГС предложены унифицированные радиаторные узлы, данные о которых приведены в табл. 7.5. Схемы этажестояков с разными диаметрами подводок показаны на рис. 7.4. Такие схемы следует применять только для увязки потерь давления в стояках.

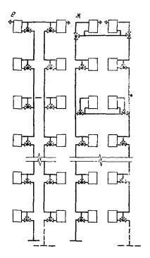
Схемы стояков, собираемых из рекомендуемых узлов, даны на рис. 7.5.

Схемы стояков на рис. 7.5, а, в имеют подъемные, горизонтальные и опускные участки. Стояки по схемам рис. 7.5, б, г, д состоят из транзитного подъемного (холостого) и нагруженных опускных участков. Отопительные приборы, указанные на транзитных стояках пунктиром, устанавливают в тех случаях, когда температура горячей воды при входе в отопительный прибор верхнего этажа с учетом теплоотдачи транзитного стояка превышает 100°С. Теплоотдачу этих приборов определяют из условия снижения температуры воды до необходимых пределов. Для компенсации тепловых удлинений на транзитных стояках предусматривают компенсаторы. Стояки с транзитными подъемными участками применяют при больших тепловых нагрузках, а также и по конструктивным условиям расстановки стояков в помещениях. Подъемную часть Т-образного стояка можно прокладывать в помещениях, для обогрева которых достаточно тепловыделений самого стояка. Для увеличения тепловыделений стояк можно выполнять диаметром до 50 мм или изгибать в виде змеевиков, располагаемых под окнами (рис. 7.5, д).


При проектировании рекомендуется в основном применять стояки со сближенной прокладкой подъемного и опускного участков (схемы на рис. 7.5, а, б, е). По схеме рис. 7.5, в стояки применяют лишь в случаях, когда невозможна их сближенная прокладка. Горизонтальный участок таких стояков прокладывают над полом или в полу верхнего этажа па сварке.

Для зданий повышенной этажности (9 и более этажей) в целях уменьшения гидравлических потерь в стояках их рекомендуется выполнять с перемычками, устраиваемыми примерно па 2/3 высоты стояка. Схемы таких стояков показаны на рис. 7.5, е, ж.

Установка арматуры на узлах присоединения П-образпых стояков к магистральным теплопроводам показана на рис. 7.6. В зданиях до 8 этажей устанавливают пробковые краны и тройники с пробками. При температуре горячей воды в стояке более 95 °С на его подъемных участках необходимо ставить вентили, а вместо тройников с пробками — краны. При числе этажей более восьми на обоих стояках — подъемном и опускном — для спуска воды устанавливают пробковые краны.



Для устранения горизонтальной разрегулировки систем отопления с П-образными стояками и повышения гидравлической устойчивости потери давления в стояках должны быть не менее 70...80 % от располагаемой разности давлений в циркуляционных кольцах без учета потерь давления в тех участках, которые являются общими для группы стояков или ветвей.

Для увязки потерь давления в циркуляционных кольцах допустимо выполнять стояки с разными диаметрами подъемного и опускного участков, а также изменять диаметры на участках между горячими и обратными магистралями и нижней подводкой к отопительному прибору первого этажа.

При определении расчетной разности давлений в системе для подбора элеватора или насоса необходимо учитывать разность естественных давлений от остывания воды в отопительных приборах и трубах в размере 40 % от максимального его значения при расчетных температурах теплоносителя. При гидравлической увязке смежных стояков естественную разность давлений учитывают в размере 40 % от максимальной только с тех случаях, когда разница в высотах смежных стояков превышает 30%. По вопросам определения естественной разности давлений для однотрубных систем см. главу 6.

Для систем с П-образнымн стояками наиболее целесообразной является тупиковая схема с ветвями небольшой длины. В случае невозможности увязки потерь давления в ветках применяют схему с попутным движением воды.


В многоэтажных зданиях с техническим чердаком можно устраивать однотрубные системы отопления с верхней разводкой магистралей. В таких системах благодаря увеличению расхода теплоносителя в стояках уменьшается число радиаторов при одностороннем их присоединении. В угловых комнатах и в комнатах с большими теплопотерями устанавливают по два стояка, к которым отопительные приборы присоединяют через этаж. В комнате один стояк будет проточным нерегулируемым и при необходимости может выполняться из труб большого диаметра (рис. 7.7).


Так как П-образные стояки при применении трехходовых кранов являются проточными и выполняются на всем протяжении из труб одного диаметра, представляя собою участок с одним расходом теплоносителя, то гидравлический расчет таких систем удобно проводить методом динамических давлений или методом характеристик сопротивления. Эти же методы оказываются весьма удобными для расчета систем отопления с неравными перепадами температур теплоносителя по стоякам, что дает возможность осуществлять полную увязку гидравлических потерь в параллельно соединенных участках и избавляет 1-й этаж от необходимости монтажного регулирования систем при пуске.

При расчетах систем отопления с неравными перепадами температур в стояках не следует допускать отклонение перепадов температур в отдельных стояках более ±15 % от общего перепада температур в системе.

Следует отметить, что в отопительных приборах, присоединенных к подъемной части П-образного стояка с замыкающими участками, в случае их выключения и последующего включения после длительного остывания возможно опрокидывание циркуляции. Такое явление происходит, когда потери давления в замыкающем участке радиаторного узла при пропуске по нему расхода стояка будут меньше противодавления, создаваемого охлажденной в радиаторе водой до 25 °С и ниже.


Во избежание возникновения подобного явления расход воды в П-образных стояках должен быть не менее величины, определяемой по приближенной формуле


Значения для радиаторных узлов со смещенными замыкающими участками, значени, вычисленные по формуле (7.6), и отвечающие этим расходам тепловые нагрузки стояков при различных перепадах температуры воды в стояке приведены в табл. 7.6, из которой следует, что минимальный расход теплоносителя в стояке из условий препятствия опрокидыванию циркуляции приводит почти к таким же скоростям, которые рекомендуются и для обеспечения выноса воздуха (см. табл. 7.3).

Андреевский А. К. Отопление: [Учеб. пособие для вузов по спец. 1208 «Теплогазоснабжение и вентиляция»]/Под ред. М. И. Курпана.— 2-е изд., перераб. и доп.— Мн.: Выш. школа, 1982.

на главную