Производственные помещения учебной мастерской Министерства труда в Будапеште

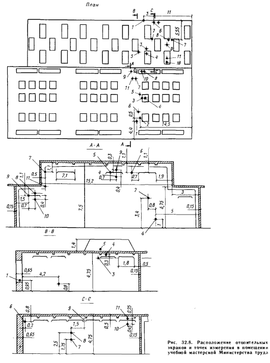
В здании мастерских, состоящем из нескольких помещений павильонного типа, действует система лучистого отопления экранами, обогреваемыми паром. Замеры производились в помещении сборочного цеха второго курса высотой 7,50 м и в помещении сборочного цеха первого курса высотой 4,75 м (рис. 32.8).

Помещение имеет железобетонное покрытие, расчетный коэффициент теплопередачи которого равен 1,6 Вт/(м -К). Зенитные фонари и боковые окна имеют стальные рамы и однослойное остекление. Внутренние теплопоступления в помещениях ничтожно малы, они составляют 2—3% суммарных теплопотерь. Размер отопительных экранов 1800 X 1800 мм, расстояние до резьбы отопительных труб 200 мм. Для теплоизоляции экранов применяется слой стекловаты толщиной 3 см. Отопление рассчитано на использование пара с давлением 0,02 МПа при 12-часовом периоде непрерывной работы. За время измерений рабочее давление обычно составляло 0,015 МПа, продолжительность непрерывной работы соответствовала расчетной.

Замеры производились с помощью выверенных термогигрографов. Показания приборов контролировались ртутными термометрами, но температурные поля, формировавшиеся в среде, окружающей отопительные экраны, и температура в помещении ртутными термометрами не контролировались, поскольку при обследовании предыдущих помещений данные двух серий измерений отклонялись друг от друга незначительно. В данных помещениях предполагалось проконтролировать изменение температуры прежде всего в зависимости от высоты. В сборочном цехе второго курса замеры осуществлялись в 11 точках (см. рис.32.8). На основании приведенных измерений можно сделать следующие выводы.

1. Перепад температуры между рабочей зоной и пространством под покрытием здания составлял всего 1 — 3°С.

2. В рабочей зоне температура воздуха не опускалась ниже 10°С даже во время перерыва в течение 12 ч, хотя в данном помещении колебания внутренней температуры между периодом работы отопления и периодом его отключения были больше (8°С), чем в помещениях Северной базы ремонта транспортных средств венгерских государственных железных дорог. Это связано, во-первых, с тем, что данное помещение имеет меньший объем (больше удельное охлаждение), во-вторых, в помещениях Северной базы ремонта транспортных средств ночное охлаждение совпадало с периодом работы отопления, во время же перерыва наружная температура поднималась, в то время как в рассматриваемом случае условия были противоположными.



В учебном цехе первого курса измерения производились в феврале также в 11 точках (см. рис. 32.8). В основном здесь получены те же результаты, что и в предыдущем случае, однако дополнительно были сделаны следующие выводы.

1. В рабочей зоне температура воздуха во время перерыва в работе в течение 32 ч не опускалась ниже 9° С, несмотря на наличие наружных стен и окон. Таким образом, отклонение по сравнению с температурой воздуха в полностью огражденном помещении учебного цеха второго курса составило лишь 1°С.

2. Влияние наружных стен и окон на температуру сказывается гораздо заметнее, чем, например, зенитных фонарей.

3. Температура воздуха непосредственно над отопительными экранами только на 4° С выше, чем средняя температура воздуха под чердачным пространством.

Мачкаши А., Банхиди Л. Лучистое отопление/ Пер. с венг. В. М. Беляева; Под ред. В. Н. Богословского и Л. М. Махова. — М.: Стройиздат, 1985.

на главную