Помещения сборочных цехов Северной базы ремонта транспортных средств венгерских государственных железных дорог

В сблокированном здании имеется девять смежных крупных помещений павильонного типа, отапливаемых экранами. Расположение помещений и их основные размеры приведены на рис. 32. 2.

Замеры осуществлялись в четырех характерных помещениях, отличающихся друг от друга высотой и типом ограждающих конструкций. Выбранные помещения имеют следующие характеристики.

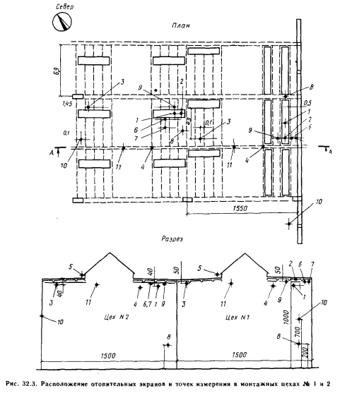
Сборочный цех № 1: высота 10 м, продольная наружная стена обращена на восток, общее воздушное пространство с расположенным рядом сборочным цехом № 2.

Сборочный цех № 2: высота 10 м, без продольных стен, общее воздушное пространство со сборочным цехом № 1 и проездом для платформ.

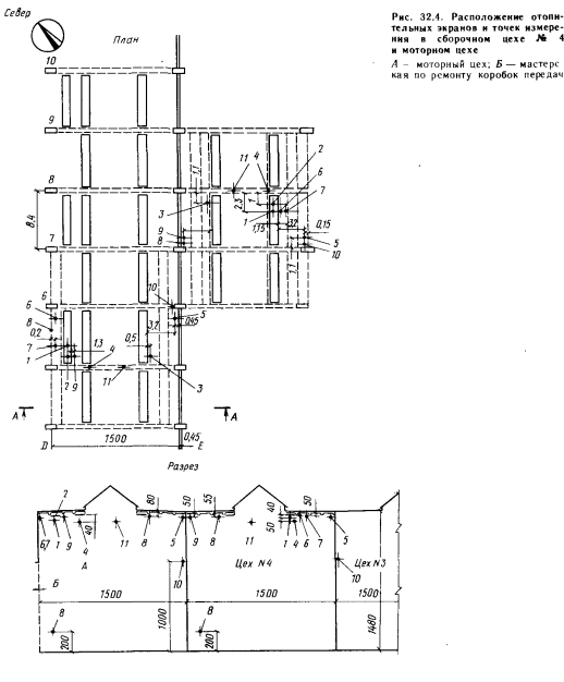
Сборочный цех № 4: высота 14 м, с одной стороны — общее воздушное пространство со сборочным цехом № 3, высотой также 14 м, с другой стороны имеется продольная стена, обращенная к помещению моторного цеха.

Моторный цех: высота 14 м, продольная перегородка обращена к сборочному цеху высотой также 14 м, общее воздушное пространство без перегородки с мастерской по ремонту коробок передач, имеющей высоту 10 м.

Расчетное значение коэффициента теплопередачи перлитобетонного покрытия здания составляет 1,4 Вт/(м 2. К). Зенитные фонари и боковое остекление однослойные, со стальными рамами. Внутренние теплопоступления в цеховых помещениях ничтожно малы и составляют 1—2% суммарных теплопотерь.

Отопительные экраны имеют следующие размеры: ширина 750 мм, длина 2000, 4000, 5000 и 6000 мм, расстояние до резьбы отопительных труб 18 см, теплоизоляция — маты из стекловаты толщиной 3 см, покрытые толем. В южном конце производственных помещений имеется общий коридор высотой 5 м, а также административные помещения. На северной стороне часть пространства занята вспомогательными помещениями, а часть — наружной стеной.

В качестве теплоносителя для системы отопления был выбран насыщенный пар с давлением 0,4 МПа. Согласно первоначальному проекту, этот пар цех должен был получать по линии централизованного теплоснабжения от Кёбаняйской электростанции. В связи с возникновением неожиданных препятствий теплофикация началась позднее, а поскольку котлы цеха не выдерживали больших нагрузок, для обеспечения отопления было принято вынужденное решение, при котором отопительная система в основном работала лишь ночью, по 10—12 ч. Давление пара в период замеров колебалось от 0,22 до 0,25 МПа, т.е. было ниже предполагавшегося при расчете отопительных экранов.

Замеры во всех цеховых помещениях производили с помощью выверенных регистрирующих термогигрографов. Показания приборов во время замеров контролировались с помощью ртутных термометров. Для более тщательного контроля температурных полей, образующихся вокруг отопительных экранов, ночью производили замеры ртутными термометрами.

Расположение отопительных экранов и точек измерения в сборочных цехах №№ 1 и 2 показано на рис. 32.3, в сборочном цехе № 4 и моторном цехе — на рис. 32.4. В моторном цехе дополнительно несколько точек были проконтролированы ночью с 23 до 3 ч с помощью ртутного термометра. Результаты этих измерений приведены на рис. 32.5. На основании результатов измерений были сделаны следующие выводы.

1. Разность температуры в рабочей зоне и в пространстве под покрытием составляет всего 1—3°С, если учитывать и значения, замеренные на высоте 10 м.


2. В рабочей зоне температура воздуха днем не опускается ниже 15°С даже в конце рабочего периода, продолжающегося около 12 ч. Между рабочим периодом и перерывом температура в рабочей зоне колебалась в пределах 3°С. Это доказывает способность полов аккумулировать теплоту, что надо всегда учитывать при лучистом отоплении крупных зданий павильонного типа.

3. Распределение температуры под покрытием здания (естественно, если пренебречь пространством непосредственно вокруг отопительных экранов) в основном равномерное (влияние наружной стены фиксировали датчики, расположенные непосредственно у стены).

4. Работа отопительных экранов влияет на температуру воздуха в большей мере в непосредственной близости от экранов.


5. Относительная влажность воздуха независимо от наружного влагосодержания сильно изменяется в зависимости от температуры.

Эти выводы подтверждаются данными, полученными в остальных обследуемых зданиях.

Помещение сборочного цеха № 1 — единственное из обследовавшихся, у которого одной из сторон по всей высоте (10 м) является наружная стена. Эта стена заметно влияет на внутреннюю температуру, определявшуюся на расстоянии 0,5 м от наружной стены. Наибольшее влияние на колебания внутренней температуры в этом помещении оказывает наружная температура. Несмотря на это, внутренняя температура не опускалась ниже 12°С даже при 16-часовом отключении отопительной системы. Разность между температурой в рабочей зоне и у покрытия высотой 10 м составляла лишь 1—2°С. Данные, замеренные в сборочном цехе № 2, подтверждают высказанные ранее соображения и даже в большей мере доказывают влияние теплоаккумуляции. Ведь у данного помещения практически нет боковой стены, поэтому ее теплоаккумуляции здесь минимальна. В то же время средняя наружная температура составляла от — 3 до —4° С, и утренний минимум более чем в течение 6 ч достигал —8°С. По сравнению с этим внутренняя температура за исключением 1—2 ч не опускалась ниже 10°С. Данные, полученные в сборочном цехе № 4, высота которого та же, что и у моторного цеха, также подтверждают сделанные выше выводы.


Мачкаши А., Банхиди Л. Лучистое отопление/ Пер. с венг. В. М. Беляева; Под ред. В. Н. Богословского и Л. М. Махова. — М.: Стройиздат, 1985.

на главную