Детальная информация Приворот на нашем сайте.

КОНСТРУКТИВНОЕ УСТРОЙСТВО СИСТЕМЫ ОТОПЛЕНИЯ, РАСПОЛОЖЕННОЙ В НАРУЖНОЙ СТЕНОВОЙ ПАНЕЛИ

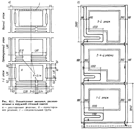
Для размещения труб системы отопления в наружной стеновой панели существует много способов. На рис. 42.1 показаны два вида устройств, применяемых в Венгрии, с указанием основных размеров (см. также рис. 6.11). Недостаток устройства системы отопления в потолке или наружной стене состоит в том, что это затрудняет технологию монтажа панели. Ниже даются краткие сведения об изготовлении панелей и их монтаже.

При подготовке форм для изготовления панелей нужно учитывать, где располагается слой бетона для размещения отопительных труб — в нижней части формы или в верхней.

В стеновой панели отопительная труба всегда располагается в бетонном слое, обращенном к помещению, по возможности вблизи плоскости внутренней стены, с учетом покрывающего бетонного слоя толщиной минимум 3 см. Применяют и такое решение, при котором отопительная труба расположена в центре тонкой однослойной перегородки и служит для дополнительного обогрева обоих помещений.

В том случае, когда наружный бетонный слой панели при изготовлении расположен вверху, отопительную трубу и отводы от нее целесообразно крепить к днищу формы, а в некоторых случаях — к боковы-м частям опалубки. Если же наружный слой при изготовлении расположен внизу, фиксацию отопительной трубы можно обеспечить с помощью прокладок, установленных на теплоизоляционную плиту, а для предупреждения всплывания во время вибрации трубы следует прикрепить к арматуре наружного бетонного слоя перевязочной проволокой. Выводы отопительных труб во всех случаях целесообразно крепить к боковым частям опалубки таким образом, чтобы плоскость наружного примыкания оставалась параллельной плоскости бетона внутри него, обеспечивая возможность Механизированного заглаживания бетона.


Для проектирования вкладышей форм, необходимых для отопительных труб и выводов, нужны рабочие проекты панелей, проекты стального каркаса панелей и рабочие проекты отопительных труб. Надо также знать технологию изготовления стеновой панели и последовательность рабочих операций. Четыре точки примыкания отопительной трубы на поддоне формы должны по проекту предусматриваться на одних и тех же местах, с коническим вкладышем, фиксирующим место трубы, с точностью до ±1 мм и максимальными допусками, учитывая возможность легкой распалубки затвердевшей панели. Закладными деталями формы являются крепежные элементы из стали или пластмассы, крепление кото- рых к форме целесообразно выполнять с помощью болтов. В других средствах для крепления отопительных труб в ходе изготовления панели нет необходимости.

При применении отопительных панелей технологическая последовательность их сборки не изменяется: снятие с подъемного крана, подпорка элементов, нивелирование, сварка стальных соединительных элементов, снятие подпорных стержней, изготовление опалубки для узловых соединений, их бетонирование. Только после выполнения этих работ можно производить соединение отопительных труб. Последнее осуществляют с помощью соответствующих соединительных элементов, подготовленных в ходе изготовления труб (рис. 42.2). После бетонирования узловых соединений производят соединение труб с помощью электрической сварки с использованием показанных на рисунке соединительных элементов.

Применение электросварки в крупнопанельных зданиях возможно, поскольку место выполнения работ подготовлено для сварки стальных соединительных элементов конструкций. Не исключено, что работы по соединению труб путем сварки, продолжающиеся не более 4 мин на каждой панели, сможет выполнять вместе с работами по сварке стальных соединительных элементов конструкций один и тот же сварщик. Соединение труб наряду с ручной электродной сваркой можно осуществлять и с помощью автомата для сварки труб, что существенно сократит время выполнения работ.

Мачкаши А., Банхиди Л. Лучистое отопление/ Пер. с венг. В. М. Беляева; Под ред. В. Н. Богословского и Л. М. Махова. — М.: Стройиздат, 1985.

на главную